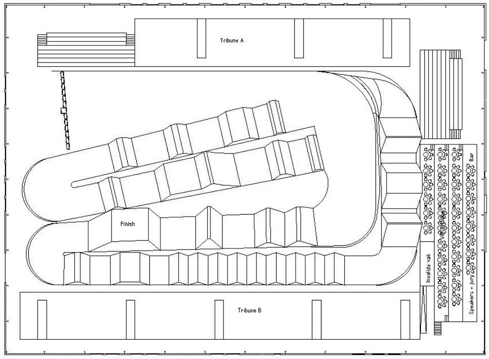
Ook de baan voor 2026 is weer ontworpen door Rinus van de Ven. Met dank aan een oude bekende, Eddy, voor het uittekenen.
Inmiddels ligt de grond al in de Zeelandhallen en de kwaliteit is echt top! Met denk aan Op ‘t Hof B.V. en Melis Kraanverhuur Middelburg BV voor hun hulp.
Maandag 5 januari worden de tribunes opgebouwd en dinsdag zal er een start gemaakt worden met het aanleggen van het circuit.
Op woensdag 7 januari wordt de baan gekeurd door de KNMV en op vrijdag 9 januari beginnen de trainingen! Mocht je nog willen komen trainen, schrijf je dan snel in via onze website!

